19 Colby Lane

Greenland, NH 03840
Beds
4
Baths
3
Square Ft.
2,850
$1,699,900
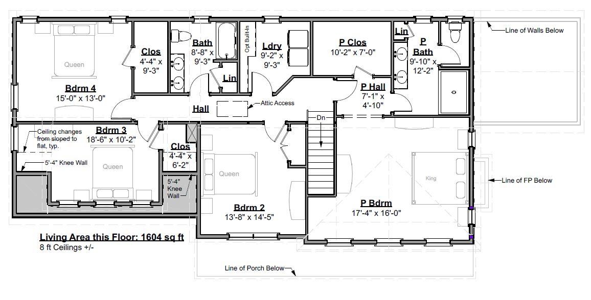
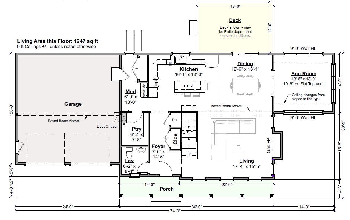
Two new homes just beginning construction! Customize your dream home on these spacious, wooded, private lots in a convenient Greenland location tucked off Bayside Road. The Country Farmhouse floor plan features large front farmers porch, open flow living space, and four generously sized bedrooms. Hand finished hardwood flooring, high ceilings,Read MoreRead Less
Courtesy of Grant Parham, Green & Company 603-964-7572
Listing Snapshot
Days Online
0
Last Updated
Property Type
Single Family
Beds
4
Full Baths
2
Partial Baths
1
Square Ft.
2,850
Lot Size
1.5 Acres
Year Built
2026
MLS Number
5085109
Market Snapshot - Source: Home Junction
30 Days Snapshot Of 03840
$1.85M
+355%
(avg) sold price
1
-50%
home sold
112
+3633%
(avg) days on market
Snapshot
Area Map
Additional Details
Property Access
Road Frontage: TBD
Building
Basement: Yes, 10 rooms, Built in 2026, 2,850 total finished sqft, Total stories: 2, Construction status: New Construction, 576 unfinished sqft above grade, 1,143 unfinished sqft below grade, 2,850 finished sqft above grade
Roof
Architectural Shingle
Basement
Basement access: Walkout, Concrete, Concrete Floor, Full, Interior Stairs, Storage Space, Unfinished, Walkout, Interior Access, Exterior Access, Basement Stairs
Floors
Carpet, Hardwood, Tile
Appliances & Equipment
Dishwasher, Microwave, Gas Range, Refrigerator, Gas Stove, On Demand Water Heater, Exhaust Fan
Heating
Propane, Forced Air, Multi Zone, Gas Fireplace
Cooling
Central AC, Multi Zone
Utilities
Electric: 200+ Amp Service, Underground
Garage
Garage: Yes, Garage capacity: 2
Lot
1.5 acres, 4,569 approx. sqft, 65,340 sqft
Parking
Driveway: Common/Shared, Paved
Property
Flood Zone: Unknown, Zoning: residential, Seasonal: No
Sewer
On-Site Septic Exists, Private, Septic
Find The Perfect Home

'VIP' Listing Search

Whenever a listing hits the market that matches your criteria you will be immediately notified.

Join The List
Mortgage Calculator- Source: AgentFire
Monthly Payment
$0
Brandon Elsemore
Owner & Managing Partner | Realtor® Licensed in ME & NH
Agent profile image

Schools In The Area

Check out nearby schools with ratings and contact info - Source: Home Junction

Explore More

Similar Listings

View More Listings

This information is deemed reliable, but not guaranteed. The data relating to real estate displayed on this Site comes in part from the IDX Program of PrimeMLS. The information being provided is for consumers' personal, non-commercial use and may not be used for any purpose other than to identify prospective properties consumers may be interested in purchasing. Data last updated .
Data last updated .